Experience upscale 1-3 bedroom apartments in Aljada, Sharjah, harmoniously blending modern living with natural surroundings and smart home features.
Experience upscale 1-3 bedroom apartments in Aljada, Sharjah, harmoniously blending modern living with natural surroundings and smart home features.
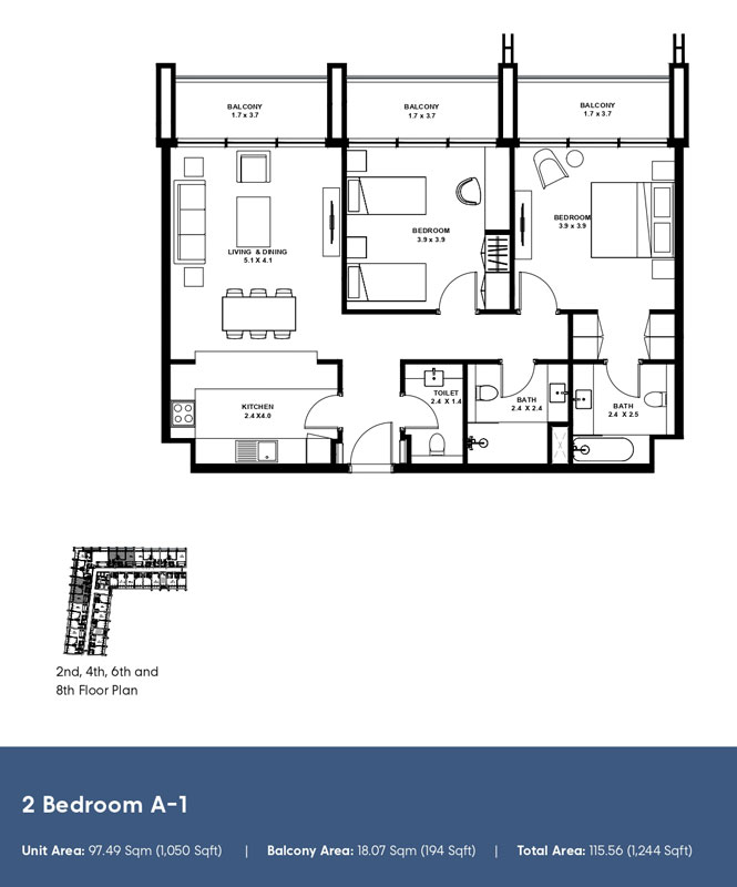
Discover exclusive 1, 2, and 3-bedroom apartments with premium white goods, offering an unmatched lifestyle within a gated community.
Enjoy a dynamic life with direct access to a boulevard, dining experiences, extensive sporting facilities, and outdoor event areas, all just steps from your door.
Located in Aljada, this development provides proximity to major highways, Madar, Naseej District, international schools, and a modern business park.



















